Nabízíme k prodeji byt 3+1 o celkové ploše 63 m², který se nachází v 6. podlaží panelového domu v klidné části obce Loučovice.
Byt je v dobrém stavu a nabízí pohodlné bydlení s praktickou dispozicí. Součástí bytu je také sklep.
Okna na jižní straně bytu jsou vybavena předokenními roletami, které zajišťují soukromí a příjemné klima v bytě. Podlahy jsou kombinované – v kuchyni je PVC, v ostatních místnostech parkety.
Dům je napojen na veřejný vodovod, kanalizaci a elektřinu. Vytápění je centrální tepelným čerpadlem pro celý dům. Nemovitost je vhodná jak pro trvalé bydlení, tak i jako rekreační byt v blízkosti Lipna. Ihned k nastěhování.
Lokalita:
Loučovice se nachází na jihu Čech, jen několik minut od Lipenské přehrady – oblíbené rekreační oblasti s možností koupání, cyklistiky, turistiky i zimních sportů. V okolí je krásná příroda Šumavy a zároveň kompletní občanská vybavenost – mateřská a základní škola, pošta, restaurace, sportoviště a večerka.
Obec má výbornou dopravní dostupnost do Vyššího Brodu, Lipna nad Vltavou i Rakouska.
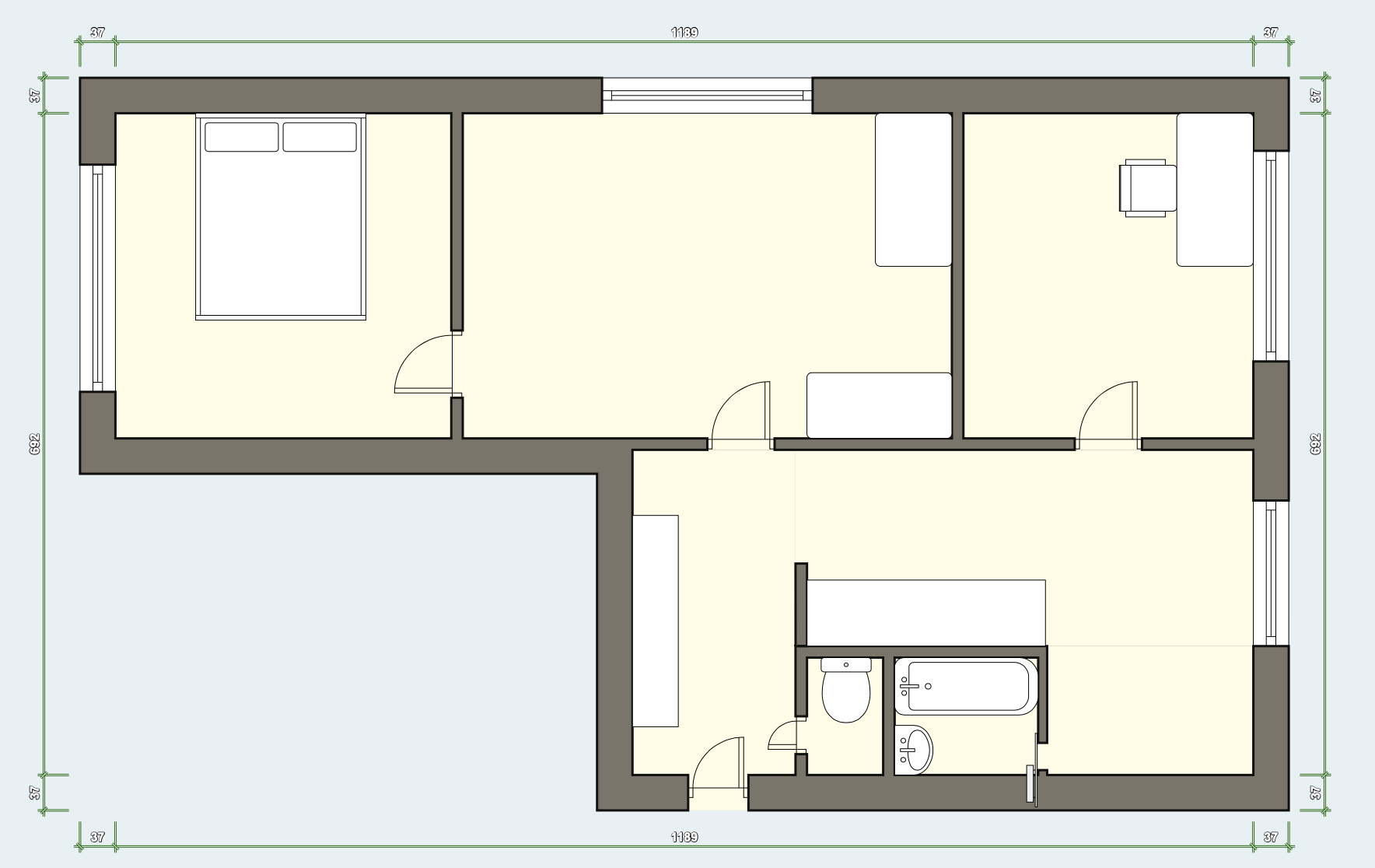
Dispozice bytu:
Byt je řešen prakticky – chodba, kuchyň, obývací pokoj, dva samostatné pokoje, koupelna a samostatné WC. Díky odděleným místnostem působí prostorně a je vhodný jak pro rodinu, tak pro jednotlivce, kteří hledají klidné bydlení v příjemném prostředí Šumavy.
Naši finanční poradci, Vám pomohou získat výhodné financování.
Pro domluvení prohlídky vyplňte kontaktní formulář.
